Área Contenda
Área em Contenda com 7.125,00m², ótima localização fazendo frente para…
R$750.000,00
Campo Redondo - Araucária
À venda
R$14.495.800,00



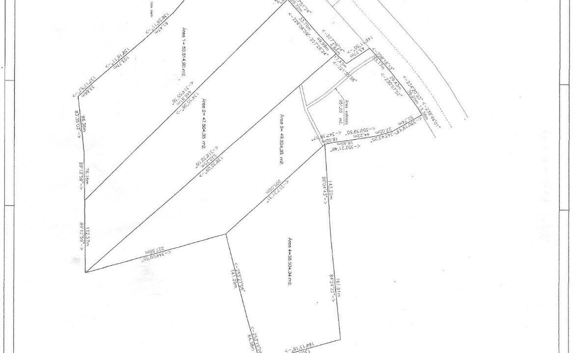
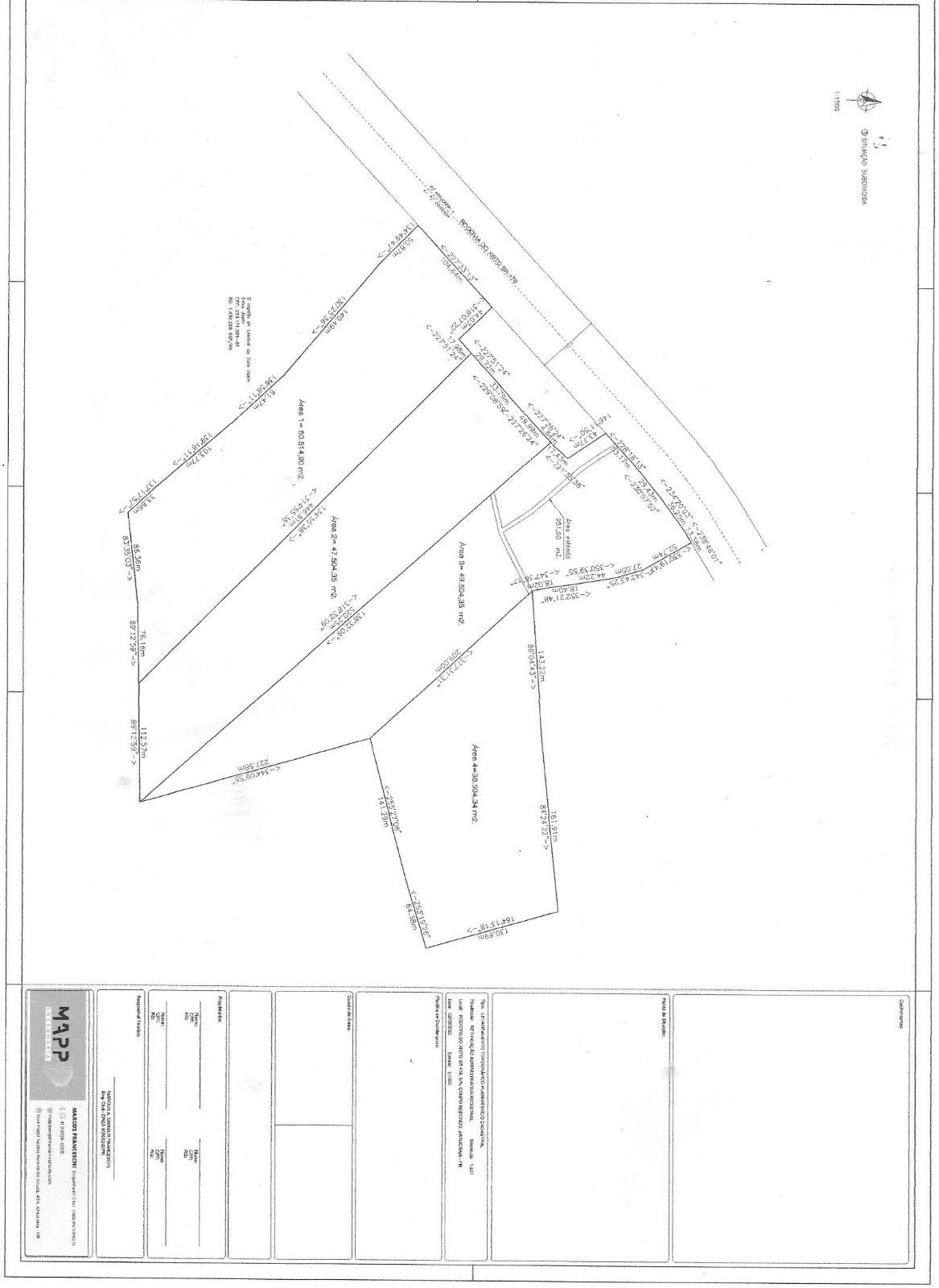
Área Industrial em Araucária, Campo Redondo com 181.152,50m², ótima localização próximo a BR 476. Contendo toda a infraestrutura para construções de barracões e outros, e o mesmo encontra-se frente para asfalto da BR 476. Tendo uma porcentagem de área aproveitável de 70%.
EDI – Eixo de Desenvolvimento Industrial. Ideal para o segmento logístico e indústria, e de fácil acesso, com saídas para Curitiba, Contenda, Lapa e outros, tendo empressas de grande porte ao seu redor. Sendo duas Frentes, uma com 230,00 metros e outra com 104,64 metros para a BR 476.
Valor: R$ 14.495.800,00 sendo R$ 80,00 o metro. ACEITA-SE PROPOSTA.
F: 3642-3116 – 9 9989-8524
Área em Contenda com 7.125,00m², ótima localização fazendo frente para…
R$750.000,00
Casa J. Iguaçu com 210,00m², contendo 03 quartos, sendo 01…
R$490.000,00
Sobrado Tríplex Jardim Iguaçu